A proposed 34-lot residential subdivision at 212 Wadeville Street in Pallara has been lodged, detailing new road access, service connections, and land dedication for road widening.
New Residential Development in Pallara
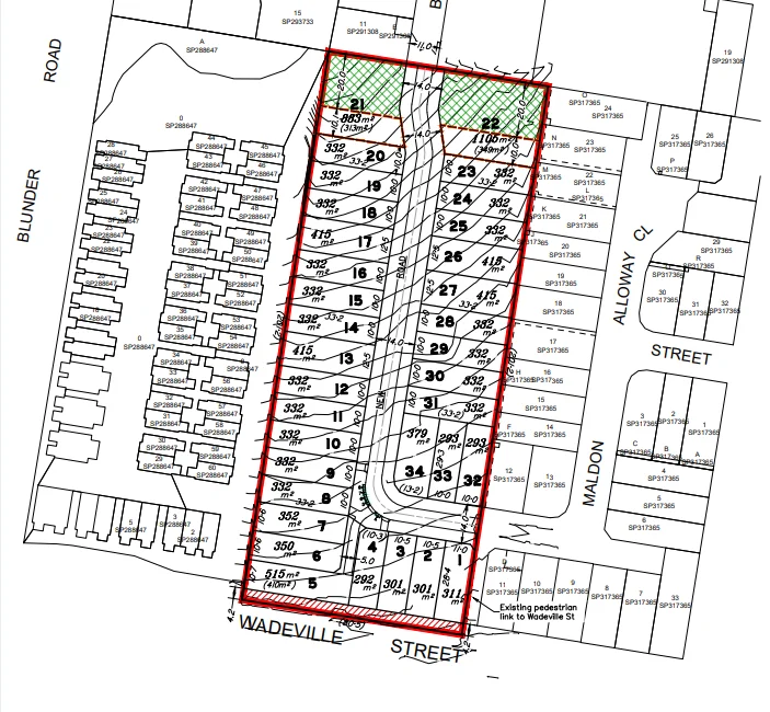
A development application has been submitted to reconfigure one lot into 34 residential lots at 212 Wadeville Street, Pallara. The proposal, lodged on 4 August 2025 under application number A006830487, is currently in progress with Brisbane City Council.
The application was lodged by JCV Developments Pty Ltd, with DTS Group QLD as the planning consultant.

Project Details and Layout
The proposed subdivision covers a total area of 16,187 square metres and includes the creation of 34 individual lots, a new 14-metre-wide local road, and a 4.2-metre land dedication for the widening of Wadeville Street.
Lot sizes range from 293 square metres to 1,091 square metres, accommodating future small-lot dwellings that comply with the Low-Medium Density Residential (LMR2) zoning, which allows up to three storeys.
The new road network will connect Maldon Street and Bilson Street, extending the existing residential grid and linking the site to surrounding redevelopments in Pallara.
Infrastructure and Servicing
All proposed lots will be connected to water, sewer, electricity, and telecommunications. Waste management will use individual kerbside bins and shared collection pads for select lots.
The proposal notes that all new lots meet or exceed the City Plan’s minimum allotment standards for the LMR2 zone.

Site and Planning Context
The development sits within the Lower Oxley Creek South Neighbourhood Plan. The site currently contains a dwelling and associated structures, which will be removed to make way for the subdivision.
The design aligns with the established residential character of Pallara and contributes to ongoing housing development in the suburb’s southern corridor.
Application Progress
According to Brisbane City Council records, the subdivision application has passed the Properly Made stage and an Information Request was sent on 9 September 2025. The application remains with the customer as of early October 2025.
The development is subject to code assessment, meaning no public notification is required.
What Comes Next
Once all information requirements are met, the proposal will move to the decision stage. If approved, the development will expand Pallara’s residential network and provide additional housing opportunities within the planned growth area.
Published 8-Oct-2025















