A development application has been lodged for a childcare centre and reconfiguration of a lot at 66 Crossacres Street, Doolandella.
Application Snapshot
The application reference is A006831357 and was submitted on 6 August 2025. The application type is listed as Material Change of Use and Reconfigure a Lot, with the use described as childcare centre and subdivision of land.
The site is identified within the Doolandella neighbourhood plan area and is zoned Emerging Community.

Proposed Childcare Centre In Doolandella
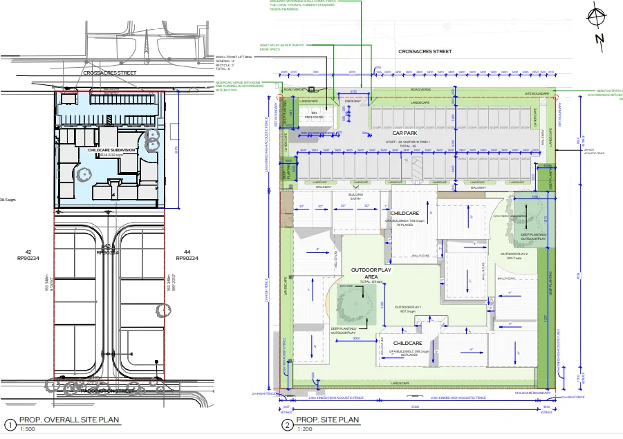
The proposal includes a new single-storey childcare centre with capacity for 165 children and a maximum height of approximately 7.64 metres.
Plans list 35 on-site car parking spaces, including one PWD space. The childcare building area is listed with a gross floor area of 1,159.6 square metres, and site cover of 29 per cent.
The centre layout includes 11 playrooms and an office, along with two outdoor play areas. The indoor play area is listed as 541.8 square metres, and the outdoor play area as 1,208.5 square metres. Proposed operating hours are 6:30 a.m. to 6:30 p.m., Monday to Friday.

Subdivision And Lot Reconfiguration
The development application also seeks a reconfiguration that includes 10 residential small lots, one drainage lot, and a road reserve, alongside the childcare lot.
The site area is listed as 10,185 square metres. The proposed new residential lots range from 312 square metres to 368 square metres, with a stated proposed density of 16 dwellings per hectare.

Assessment And Notification Dates
The application is listed as impact assessment and remains in progress.
Public notification is recorded as commencing on 25 November 2025 and concluding on 16 December 2025, with submissions received. Several earlier assessment steps are recorded as completed, including an information request sent on 19 September 2025.
A Final Response Received Date is not listed, and a Decision Notice Date is not listed in the provided information.
Project Team
The documentation identifies Isaac Consulting as town planner/consultant, ISA Collective as architect, and Citicene as landscape architect.
Published 16-Jan-2026
















